Education Projects

Lorin Eden Elementary School

Hayward, California 

 

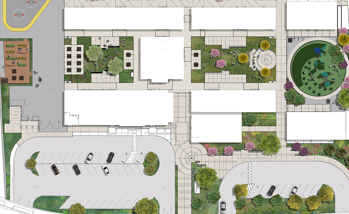
Hayward Unified School District chose the team of Merrill-Morris Partners and HY Architects to lead a three-phase modernization of Lorin Eden Elementary School. MMP coordinated the landscape improvements including all outdoor pavements, site furniture, native and adapted planting, and low-water irrigation. 

 

The first phase consisted of site parking improvements, new school buildings, unique berms in the Kindergarten play area, and new quad space featuring an outdoor classroom. The second phase upgraded existing buildings and quad spaces, created a new playground shelter, and expanded the play yard. The final phase will reconfigure an existing parking lot and develop public access to the existing playfields on campus.

 

Owner/Client: Hayward Unified School District

Team Lead: HY Architects